產品導航
Product navigation
當前位置:首頁 > 公司新聞 > 熱電脫硝尿素斗式提升機技術規范
熱電脫硝尿素斗式提升機技術規范
發布人:新鄉天太斗式提升機廠家 發布時間:2019-10-15
熱電脫硝尿素斗式提升機技術規范
1總則
本技術規范書適用于**熱電公司液氨改尿素EPC工程的尿素斗式提升機裝置。
本工程設置2套斗式提升機,起吊尿素到尿素溶解罐上部,滿足溶解罐配置用量,斗提機帶插板閥,落料后關閉。供貨范圍包括斗式提升機(共設兩套),及其上面的附屬設備、儀表、管道、閥門等。
2工程概況
2.1 工程概況
2.1.1 概述
熱電公司對包括3、4號機組(即1×410t/h +1×1165t/h鍋爐)脫硝還原劑進行由液氨改尿素的工程設計。
2.1.2 總工期要求
詳見商務部分。
2.2 水、電、汽、氣、還原劑
脫硝改造是在老機組上實施,工程所需輔材可直接利用現有設備或進行局部擴容改造,可供利用的輔助材料參數見表1-1。具體接口位置由供需雙方現場確認。
?脫硝公用區所需工業水、除鹽水及生活水,可直接利用廠區現有水源。
?脫硝雜用和儀用壓縮空氣使用量較少,可直接利用現有3、4#機組氣源。
表1-1.脫硝可用消耗品參數
2.3 地理位置
廠址位于四平市東部的鐵東區,距西部四平火車站約3km,距東部哈大高速公路約1km,距南部平東站鐵路交接場約2km,距東部放牛溝貯灰場11km,距東部二龍山水庫約30km,距東部下三臺水庫凈水廠9km,距西北部四平機場約10.2km。廠址位于城市主導風向的下風側。
廠區西側為居民區,南側為南四緯路,廠區南側有人防地道通過,北側為中央東路,東側為耕地及西北-東南方向的“八三”輸油管線。廠區地形起伏不大,總體地勢為東南高西北低,地面標高為190.24~195.07m。在地貌上屬于東部低山丘陵與波狀平原的過渡帶。
本期廠址自然地面標高在190.5~196.8m之間。高于南、北河百年一遇洪水位,廠址不受百年一遇洪水影響。
2.4 地理及氣象條件
本地區屬溫帶大陸性氣候區。年平均氣溫為9.6℃,極端最高氣溫為37.3℃,極端最低氣溫為-33.3℃,多年平均降雨量為681.1mm,全年主導風向SSW,最大風速34.1m/s,多年平均濕度64%,地區采暖期長達163天。
主要氣象條件如下:
平均氣壓995.8hPa
極端最低氣壓963.0hPa
極端最高氣壓1028.9hPa
平均氣溫9.6℃
平均最高氣溫12.5℃
平均最低氣溫0.6℃
極端最高氣溫37.3℃
極端最低氣溫-33.3℃
多年平均降水量681.1mm
年最大降水量798.3mm
平均降雨量681.1mm
多年平均相對濕度64%
最大風速34.1m/s
全年主導風向SSW
最大積雪厚度22cm
廠區最大凍土深度 1.48m
2.6 尿素品質
煙氣脫硝SCR還原劑采用尿素制備,尿素品質符合國家標準GB/T 2440-2017的工業尿素要求,見下表。
3規范、規程和標準
尿素斗式提升機設備、裝置的設計、制造、安裝、調試、試驗及檢查、試運行、考核、最終交付等,應符合相關的中國法律、規范以及最新版的ISO和IEC標準。標準采用須符合下述原則:優先采用中國國家標準(GB)、部頒標準及電力行業標準(DL);
4技術要求
4.1 斗式提升機性能要求
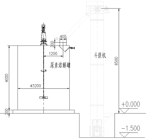
本項目設置2套斗式提升機,起吊尿素到尿素溶解罐上部,滿足溶解罐配置用量,斗提機帶插板閥,實現自動控制,落料后關閉。斗提機提斗內襯2.5mm304不銹鋼,落料槽內襯2.5mm304不銹鋼,斗提機入口設有304不銹鋼2.5目的濾網,斗提機室內布置,每臺斗提機最大輸送能力為30t/h。
4.2總體要求
4.2.1斗式提升機用于將尿素顆粒輸送到尿素溶解罐內,尿素溶解罐及管口見下圖,溶解罐尺寸為Φ3200x4000mm,尿素進口為400x400mm方口,管口高200mm。溶解罐基礎高200mm。斗提機基礎高度為-1500mm(此數據以供方設計為準,但是尿素投料口需與室內地面齊平)。
斗式提升機的輸送工作原理是:料斗把物料從下面的儲藏中舀起,隨著輸送帶或鏈提升到頂部,繞過頂輪后向下翻轉,斗式提升機將物料傾入接受槽內。本項目采用輸送帶式。斗提機一般都裝有機殼,以防止斗提機中粉塵飛揚。
4技術要求
4.1 斗式提升機性能要求
本項目設置2套斗式提升機,起吊尿素到尿素溶解罐上部,滿足溶解罐配置用量,斗提機帶插板閥,實現自動控制,落料后關閉。斗提機提斗內襯2.5mm304不銹鋼,落料槽內襯2.5mm304不銹鋼,斗提機入口設有304不銹鋼2.5目的濾網,斗提機室內布置,每臺斗提機最大輸送能力為30t/h。
4.2總體要求
4.2.1斗式提升機用于將尿素顆粒輸送到尿素溶解罐內,尿素溶解罐及管口見下圖,溶解罐尺寸為Φ3200x4000mm,尿素進口為400x400mm方口,管口高200mm。溶解罐基礎高200mm。斗提機基礎高度為-1500mm(此數據以供方設計為準,但是尿素投料口需與室內地面齊平)。
斗式提升機的輸送工作原理是:料斗把物料從下面的儲藏中舀起,隨著輸送帶或鏈提升到頂部,繞過頂輪后向下翻轉,斗式提升機將物料傾入接受槽內。本項目采用輸送帶式。斗提機一般都裝有機殼,以防止斗提機中粉塵飛揚。
4.4結構、平臺和扶梯
4.4.1概述
供方方須設計尿素斗式提升機設備的檢修和維護平臺,使檢修和維護工作能夠順利進行。
設計時要考慮平臺、扶梯和欄桿協調性(如型式、色彩)。
所有設備檢修和維護平臺、扶梯采用鋼結構。
同一平臺不同荷重的特定區域應作上永久標記。
所有鋼結構的混凝土支撐面的高度不大于200mm。
操作位置高于1.5m的設備需要設置操作和維護平臺、扶梯/爬梯、欄桿。
4.4.2凈空和尺寸

對于平臺、鋼梯、鋼梯平臺、走道輔助梯級、緊急出口、靠近設備的走道、最小高度不小于2.20m,鋼梯寬度≥900mm。
除非另外指出,安裝道路在所有方向上比最大搬運件與搬運工具加在一起的尺寸大0.3m。
4.4.3平臺及格柵
如沒有特殊規定,所有平臺、鋼梯和鋼梯平臺都要以鋼格柵覆蓋,與現有鍋爐本體保持一致。
(2)鋼格柵要水平排列,且在任何方向看都是統一的形式,每塊鋼格柵由4個螺釘安全牢固地固定在結構上,需要搬移的格柵應配備把手。
(3)所有平臺和鋼梯的設計荷載及撓度應滿足相關規范的要求,所有平臺和鋼梯的設計荷載及撓度應滿足相關規范的要求,平臺采用鋼結構。
(4)所有格柵需經過熱浸鍍鋅處理,最小高度不小于30mm,且格柵邊緣和切邊用與格柵材料同樣尺寸的鋼條包圍。格柵板規格與主機一致。鋼格柵的要求如下:
格柵板規格:1000×950mm,格柵板材質:Q235A;格柵板負荷扁鋼及包邊扁鋼規格:32×5mm;橫桿:6×6mm;扁鋼間距:30mm;橫桿間距:100mm;格柵板扁鋼外形為平面型;短邊(950)為負荷扁鋼。
(5)如果鋼格柵要切割或焊接,則要重新鍍鋅。
(6)所有平臺和鋼梯平臺都提供有180mm的踢腳板,踢腳板最小厚度是3mm。
4.4.4欄桿
所有平臺、鋼梯和鋼梯平臺應在每邊都安裝欄桿。
(2)用于平臺欄桿的支桿底腳是平的,用于鋼梯的是平整底腳,但支桿不能固定在踢腳板上。
(3)所有鋼扶手和欄桿應鍍鋅,欄桿扶梯鍍鋅件全部采用螺紋連接,現場不能焊接。
(4)所有平臺上的欄桿高度按國標GB4053-2009《固定式鋼梯及平臺安全要求》執行,基本要求如下:
?平臺和通道 1050mm
?20m標高及以上的平臺和通道 1200mm
?樓梯 900mm
(5)支撐桿不能固定在踢腳板上,欄桿支撐桿間的距離為800mm―1000 mm。
(6)欄桿的最小外徑為33.5mm。
(7)每米欄桿抵擋的水平推力不小于3000N。
4.4.5扶梯
該尿素斗式提升機設計所有必需的扶梯。
扶梯的傾斜角度盡可能統一,不能采用超過45°的斜角。
應盡量采用扶梯,確實無法布置扶梯處才采用爬梯,但必須征得需方同意。爬梯高度大于3600mm或爬梯安裝在較高的地方(垂直高度>2500mm)時,必須配備保護圈。
4.6電氣系統
4.6.1每一臺電動機的設計與構造, 與它所驅動設備的運行條件和維修要求一致。
4.6.2電動機基本性能保證值的允差為:
效率 -0.1(1-η)間接法
功率因數 COSφ:-(1-COSφ)/6 (0.02~0.07)
最初啟動電流: 保證值的+20%
最初啟動轉矩: 保證值的-10%
4.6.3 最大轉矩: 保證值的-1%
4.6.4電動機的額定頻率為50Hz,交流電動機能夠在滿負荷,頻率變化在±5%額定頻率, 或在額定頻率下電壓變化在±10%額定電壓,或電壓和頻率同時變化絕對值之和在10%,且頻率變化±5%以內時, 運行無故障。
4.6.5當電壓為額定,且電源頻率與額定值的偏差不超過±1%時,電動機能輸出額定功率。
4.6.6當電動機運行在設計條件下時, 電動機的額定出力不小于拖動設備120%。
4.6.7電動機的電壓規定如下:
380V電動機的額定功率范圍為200kW以下;
6000V電動機的額定功率范圍為200kW及以上
4.6.8電動機能在70%的額定電壓和額定頻率下自啟動, 并加速所啟動的設備.
4.6.9在設計的環境溫度下, 電動機能承受所有熱應力和機械應力。并當端電壓保持在額定值的100%時, 電動機能達到滿意的運轉性能。
4.6.10多相鼠籠式感應電動機的堵轉電流, 如果沒有得到需方同意, 不得超過全負載電流的650%。
4.6.11電機采用Y系列形式,防護等級IP55,絕緣等級為F級,電機有過流和斷電保護,電機繞組經真空浸漬處理和環氧樹脂密。電機使用壽命不少于30年。電機為連續工作制。
4.6.12任何通風口的濾網能拆裝, 并抗腐蝕。
4.6.13電動機有固定需方接地導線的合適裝置。若采用螺栓連接, 在金屬墊片或是電動機的底座上, 有足
夠數量的螺栓保證連接牢固。
4.6.14電動機出線盒的方位, 按需方要求。
4.6.15導線接地裝置在電動機主接線盒的一側, 或者在臥式電動機后端的底座附近。
4.6.16電動機的軸承結構是密封的, 能隔絕污物和水, 并不使潤滑劑進入線圈。
4.6.17軸承的使用壽命與電動機直連的軸承不少于15年。
4.6.18臥式電動機配備的滑動軸承, 為油環形。并具有分開的軸承箱和端蓋, 使之在不拆卸電動機的情況下,能夠檢查或替換軸襯, 電動機的結構能在不拆卸半聯軸節的情況下拆裝轉子。
4.6.19除全封閉式電動機外, 滑動軸承的結構能在不拆卸軸承箱的情況下, 方便地檢查空氣間隙, 以確定軸承磨損程度。
4.6.20測量軸承溫度的熱電偶可靠地安裝。
4.6.21溫度檢測元件的引線與動力線分開, 引向單獨的接線盒。各引線要排列整齊, 使之能根據電動機的外形圖確定每個檢測元件的位置。
4.6.22供方提供的接線盒, 裝在電動機的底座上。該接線盒能沿對角線分開, 并可從電動機上拆下來。在接線盒內標明電動機的相序,旋轉方向標記在銘牌上。
4.6.23接線盒能防日曬雨淋和抗腐蝕。
4.6.24電動機的所有引線, 都接到各自的接線盒, 并帶有適當的標記和識別符號。
4.6.25電動機的內部引線孔足夠大, 使與引線相連的任何接頭都能通過。
4.6.26電動機有吊環或其它起吊設施, 使電動機能夠簡便安全地起吊。
4.6.27斗式提升機所配電動機有標牌。標牌上標注電動機的名稱、型號、接線方式和額定數據, 如額定功率、額定電壓、額定電流、額定頻率、額定轉速、轉動方向、防護等級和絕緣等級等, 還要標寫制造廠家、出廠編號和出廠年月。
版權說明:如非注明,本站文章均為新鄉天太斗式提升機廠家原創,轉載請注明出處和附帶熱電脫硝尿素斗式提升機技術規范本文鏈接。

